自動消防水炮系統水源能不能使用市政給水?
瀏覽: 發布日期:2020-11-23
在國內很多的企業建筑的時間比較早,早期采用消火栓系統作為噴水滅火的主要力量,而消火栓的主要供水水源來自市政管網;但是現階段新型的自動消防水炮系統出現,解決了大空間場景里面自動噴水滅火的難題,而且全自動的工作模式降低了危險,提高了工作效率,讓越來越多的用戶選擇使用自動消防水炮系統。但是老建筑增加自動消防水炮系統,能否使用市政供水系統呢?

《消防給水及消火栓系統技術規范》GB50974-2014規定:消防水源應符合下列規定:
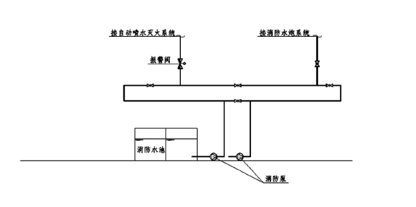
1、市政給水、消防水池、天然水源等可作為消防水源,并宜采用市政給水;
2、雨水清水池、中水清水池、水景和游泳池可作為備用消防水源。
3、消防給水管道內平時所充水的pH值應為6.0~9.0。
4、應至少有兩條不同的市政給水干管上不少于兩條引入管向消防給水系統供水。
國標中明確指出消防用水可以采用市政供水系統,也可以使用消防水池,天然水源等作為消防水源,消防水池中的應該是從市政消防水中儲存。
而市政消防給水系統的流量有多大呢?

根據每個地方的情況不同,市政供水的流量不一樣,但是基本上需要依靠國標進行,《消防給水及消火栓系統技術規范》規定:城鎮的市政消防給水設計流量需要按照應按同一時間內的火災起數和一起火災滅火設計流量經計算確定。同一時間內的火災起數和一起火災滅火設計流量不應小于(地區人流量小于1W人的情況下,按照1個起火點來計算設計流量)15L/S。
這樣的情況對于設計自動消防水炮系統就比較明確了,可以采用市政消防供水系統,但是需要對設計流量進行分別對待,在流量大于30L/S的時候,可以采用消防水池的方法進行供水,在流量小于30L/S的時候,可以直接采用市政供水管網進行,但是市政供水的時候,需要使用雙路管道進行供水。




